
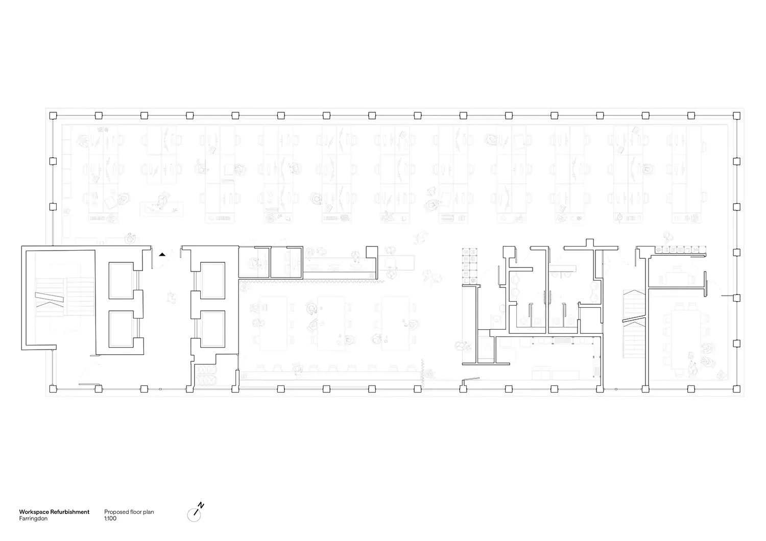
Workspace Refurbishment
PROJECT
Location: Central London
Budget: Confidential
Type: Workspace
Timeline: 2022 - 2023
Status: Tender
STUDIO TEAM
Caitríona Nolan,
Stephen Jolly,
Sumaita Zaman,
Andy Matthews
TEAM
Client: Private
Furniture Consultant: OW-N
CREDITS
CGI: architectureONpaper