Do I really need a dimensional survey?

 

Apart from selecting a good architect, commissioning a good quality measured survey is one of the best ways of getting a project off to a good start.

 

Andy Matthews Studio is a values driven RIBA Chartered Practice with a broad portfolio of work.
Please contact us if you are seeking an architect to work with you.

 

What is a measured survey?

The term 'dimensional survey' refers to accurate scale drawings or digital data provided by a specialist surveyor. More commonly known as a measured survey, this type of survey differs from other survey types required for a project – such as structural surveys, tree surveys, RICS homeowner surveys etc.

A measured survey provides accurate information about your building's physical dimensions – size, shape volume, and even location and position in the world. It captures everything from wall positions and ceiling heights to the location of beams, columns, windows, doors, services and pipework. It is a digital version of your existing building, sometimes referred to as a digital twin.

This data is delivered in various formats depending on your project needs. Most commonly, you'll receive floor plans, elevations and sections to scale as PDF files and CAD drawings (AutoCAD DWG) – this format is most important for your architect as they will import it into whatever CAD software they use. Whilst the information can be delivered in 2D, modern surveying processes rely on 3D LiDAR point cloud scans to produce the base information. These are then interpreted into these accurate 2D drawings. 3D data can be provided from these same scans in Revit, or other 3D formats such as SketchUp, again some form of interpretation is required from a dimensional surveyor to make the best of this data.

Why does your architect need it?

Buildings are rarely straight, square, or level, no matter how they appear when you’re there, or how new they are. When you're planning a refurbishment, extension, or even just a new kitchen, these variations and off square space or general wonkiness can cause issues as the design develops. Being able to understand the exact size and extent of the space from day one allows projects to be planned in greater detail and accuracy - importantly with more confidence that they will work on site from the outset. It is also essential to ensure that good coordination is possible with structural engineers and MEP (Mechanical Electrical Plumbing) designers.

Redesigning items such as finishing items such as stairs, cabinetry or finishes on site due to poor quality dimensional information isn’t much fun and can be costly. Despite this a good understanding of tolerances is always required, regardless of how accurate the survey data is. All drawings are an abstraction of the physical reality and should be treated as such - a good architect will take this into consideration.

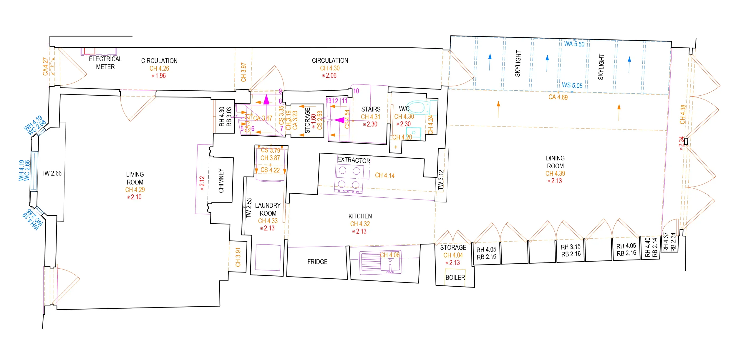
CAD plan of a historic property in London developed from a laser scan measured survey. The property is wonky and with few straight walls.

An example of a dimensional survey plan of a historic building in Greenwich. The plan is far from square and would be impossible to record accurately with a tape, laser measure and sketch pad. Drawing © Modelling Architecture.

What will it be used for?

The measured survey becomes the foundation for all drawn design information on the project. Your architect uses it to develop design proposals that fit within your existing building and site boundary. All other consultants rely on this information to prepare their design – structural, MEP. The cost consultant can also measure areas and volumes from this information.

The survey data also helps identify potential challenges early. That ceiling that's lower than you thought, or the room that is far more off square than you thought. It’s better to know up front whilst the work is being tested in digital form, rather than on site when mistakes are harder and more expensive to correct.

For any project that requires Planning Permission, Listed Building Consent, or Conservation Area approval a well surveyed and accurate set of drawings are essential. This also helps when trying to get the most on the site and when using levels from adjacent buildings to design to. Testing things like the 45 degree rule (rights of light) become a lot easier when accurate survey information is available. Planning and Listed Building Consents can be won, or lost, on these types of issues.

The Golden Thread

The Building Safety Act and the concept of the Golden Thread have further reinforced the need to work with accurate dimensional survey information. While these regulations primarily affect higher-risk buildings, the principle is sound for all projects and is generally being adopted as an approach over all projects, regardless of scale.

The Golden Thread refers to the thread of accurate building information that should run through a building's entire lifecycle - from design and construction through to occupation and eventual adaption and renovation, or even demolition. The measured survey becomes an early part of that thread. It's not just about gaining Planning Consent/permission or designing an extension or alterations; it's about creating a reliable record of the building as it exists today. It’s an excellent record to have for the future life of the building.

Modern surveying techniques

Modern surveying technology has moved well beyond tape measures, chain surveys and notebook sketches that many architects still use. Laser scanning creates millions of measurement points across your building in a few hours, producing incredibly accurate 3D data – and with it many terabytes of information. This level of detail is useful for all building projects, but particularly valuable for complex buildings or projects involving intricate joinery and tight tolerances. Whilst not every project needs a full 3D laser scan survey. Anything more than a room or two would benefit from it and most surveyors use this technology by default these days.

Your architect will advise on what level of survey is appropriate. Generally, the more complex your project, or the tighter the tolerances, the more detailed your survey needs to be. Heritage or Listed buildings, projects involving structural alterations, or anything requiring Building Control approval will typically need comprehensive surveys.

An image from a LiDAR laser scan of a railway arch. The images has dots from the scan and is green and red.

An example of a laser scan output before conversion to 2D or 3D information. A laser scan was required due to the curve of the railway arch and need for accuracy for steelwork fabrication. © Modelling Architecture.

How much should it cost?

Depending on the scale of the property these can vary from around £450 to £2,000. The value it creates in the longer term is immeasurable and it also allows your architect to start designing with accuracy from day one.

Andy Matthews Studio have worked with Modelling Architecture since 2001 and regularly work with them to obtain quotes on behalf of our clients. Call us on 020 4537 5231 to discuss your requirements and to obtain a quote.

Getting it right from the start

The best time to commission a measured survey is before you start serious design work. Once you've appointed your architect, they can help you organise this and specify what information is required. Most architects have survey companies they work with regularly and trust to deliver good results.

Your surveyor should be briefed by your architect to confirm what information is needed and to what level of detail is required. Different projects require different levels of information or areas of data recorded. For instance, section cuts may be required in certain areas to confirm areas of complexity and avoid issues in the future.

The survey should be paid for directly by you to the survey company and a copy provided to the architect to use. This means that you retain the rights to use the measured survey in the future. This data should then be kept safe with any digital files archived and backed up safely for the future.

Updating the measured survey

The measured survey can sometimes need updating when works are taking place on site. Once strip out and demolition works have taken place there may be elements found behind built in cabinetry, ceiling voids, or stud walls that then need re-surveying to accurately position these elements. A good surveyor will be able to revisit site and provide this additional information co-ordinated against the original measured survey. This is often helpful for accurate setting out in these areas.

CAD cross section drawing of a historic property in London developed from a laser scan measured survey. The property is wonky and with few straight walls and multiple changes in level..

An example of a dimensional survey section of a historic building in Greenwich. The section is complex and has several changes in level which would be difficult to accurately measure with a tape, laser measure and sketch pad. Drawing © Modelling Architecture.

 

Considering a project? Contact us on 020 4537 5231 to discuss it with us.

 
Previous
Previous

Anstey Horne x Atomik Architecture, St Swithin’s cycle 2025

Next
Next

South London new homes